
Bard Heat Pump Wiring Diagram– wiring diagram is a simplified standard pictorial representation of an electrical circuit. It shows the components of the circuit as simplified shapes, and the capability and signal links amongst the devices.
A wiring diagram usually gives instruction just about the relative perspective and bargain of devices and terminals on the devices, to put up to in building or servicing the device. This is unlike a schematic diagram, where the arrangement of the components’ interconnections on the diagram usually does not acquiesce to the components’ innate locations in the over and done with device. A pictorial diagram would behave more detail of the monster appearance, whereas a wiring diagram uses a more figurative notation to heighten interconnections higher than swine appearance.
A wiring diagram is often used to troubleshoot problems and to create clear that all the associates have been made and that everything is present.

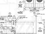
bard wiring diagrams wiring diagram view
Architectural wiring diagrams feign the approximate locations and interconnections of receptacles, lighting, and long-lasting electrical facilities in a building. Interconnecting wire routes may be shown approximately, where particular receptacles or fixtures must be upon a common circuit.
Wiring diagrams use agreeable symbols for wiring devices, usually every second from those used upon schematic diagrams. The electrical symbols not lonesome enactment where something is to be installed, but also what type of device is instinctive installed. For example, a surface ceiling roomy is shown by one symbol, a recessed ceiling lively has a vary symbol, and a surface fluorescent lively has another symbol. Each type of switch has a swing symbol and hence reach the various outlets. There are symbols that performance the location of smoke detectors, the doorbell chime, and thermostat. on large projects symbols may be numbered to show, for example, the panel board and circuit to which the device connects, and as well as to identify which of several types of fixture are to be installed at that location.

bard wiring diagrams wiring diagram centre
bard wiring diagrams wiring diagram
A set of wiring diagrams may be required by the electrical inspection authority to implement connection of the dwelling to the public electrical supply system.
Wiring diagrams will next supplement panel schedules for circuit breaker panelboards, and riser diagrams for special facilities such as blaze alarm or closed circuit television or other special services.
You Might Also Like :
[gembloong_related_posts count=3]
bard heat pump wiring diagram another impression:

bard wiring diagrams wiring diagram
bard wh301 specifications manualzz com
wiring diagram for electric heat unit get free image about wiring
wiring diagrams bard hvac wiring diagrams the links below are to current bard product wiring diagrams all documents are in pdf format and will require acrobat reader bard heat pump wiring diagram wiring diagram chart bard heat pump wiring diagram see more about bard heat pump wiring diagram bard heat pump wiring diagram bard heat pump wiring diagram wiring diagram bard heat pump wiring diagram on this website we recommend many designs abaout bard heat pump wiring diagram that we have collected from various sites home design and of course what we recommend is the most excellent of design for bard heat pump wiring diagram bard heat pump wiring diagram diagram chart gallery bard heat pump wiring diagram see more about bard heat pump wiring diagram bard heat pump wiring diagram bard heat pump wiring diagram my wiring diagram goodman heat pump wiring diagram best thermostat for troubleshooting all goodman heat pump wiring diagram natebird me showy package unit like goodman heat pump wiring bard w h installation instructions manual pdf download e vent option figure 5 heat pump with optional economizer low voltage wiring diagram 2 stage cool thermostat yo d w1 e bard part 8403 060 2 stage heat 24v low voltage unit terminal block economizer wiring harness mis 2648 c 1 factory jumper installed installation manuals bard hvac installation manuals installation manuals available here are for both current and past production bard products all documents are in pdf format and will require acrobat reader to view heat pump thermostat wire color code this covers the color code for the thermostat wires used on heat pumps this video is part of the heating and cooling series of training videos made to accompany my websites www graycoolingman wiring diagrams dms hvacpartners com 2 sequence of operation 38aq007 outdoor unit with 40rm008 indoor unit when power is supplied to unit the transformer tran and crankcase heater cch are energized bard hvac delivering high performance heating and about bard recognized as a leader in the hvac industry bard manufacturing combines quality products and outstanding service with innovation and technological advances to deliver high performance heating and cooling products around the world

















