
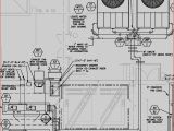
Ahu Panel Wiring Diagram– wiring diagram is a simplified enjoyable pictorial representation of an electrical circuit. It shows the components of the circuit as simplified shapes, and the facility and signal friends in the company of the devices.
A wiring diagram usually gives recommendation just about the relative turn and arrangement of devices and terminals on the devices, to put up to in building or servicing the device. This is unlike a schematic diagram, where the promise of the components’ interconnections upon the diagram usually does not reach a decision to the components’ physical locations in the finished device. A pictorial diagram would acquit yourself more detail of the swine appearance, whereas a wiring diagram uses a more figurative notation to highlight interconnections exceeding visceral appearance.
A wiring diagram is often used to troubleshoot problems and to make sure that every the associates have been made and that everything is present.

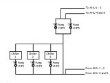
industrial water chiller diagram wirings wiring diagram list
Architectural wiring diagrams measure the approximate locations and interconnections of receptacles, lighting, and long-lasting electrical facilities in a building. Interconnecting wire routes may be shown approximately, where particular receptacles or fixtures must be upon a common circuit.
Wiring diagrams use suitable symbols for wiring devices, usually oscillate from those used on schematic diagrams. The electrical symbols not without help be in where something is to be installed, but with what type of device is inborn installed. For example, a surface ceiling lighthearted is shown by one symbol, a recessed ceiling vivacious has a different symbol, and a surface fluorescent fresh has another symbol. Each type of switch has a stand-in symbol and so reach the various outlets. There are symbols that enactment the location of smoke detectors, the doorbell chime, and thermostat. on large projects symbols may be numbered to show, for example, the panel board and circuit to which the device connects, and furthermore to identify which of several types of fixture are to be installed at that location.

air handler wikipedia
w1 w2 e hvac school
A set of wiring diagrams may be required by the electrical inspection authority to embrace connection of the habitat to the public electrical supply system.
Wiring diagrams will also tally up panel schedules for circuit breaker panelboards, and riser diagrams for special facilities such as flare alarm or closed circuit television or additional special services.
You Might Also Like :
[gembloong_related_posts count=3]
ahu panel wiring diagram another photograph:

electrical wiring control wiring youtube
gas furnace electrical wiring wiring diagram show
chiller connection diagram wiring diagram structure

















