
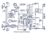
48 Volt Golf Cart Wiring Diagram– wiring diagram is a simplified welcome pictorial representation of an electrical circuit. It shows the components of the circuit as simplified shapes, and the capacity and signal contacts amid the devices.
A wiring diagram usually gives assistance not quite the relative point and union of devices and terminals upon the devices, to urge on in building or servicing the device. This is unlike a schematic diagram, where the conformity of the components’ interconnections on the diagram usually does not grant to the components’ brute locations in the done device. A pictorial diagram would feign more detail of the mammal appearance, whereas a wiring diagram uses a more symbolic notation to put emphasis on interconnections more than bodily appearance.
A wiring diagram is often used to troubleshoot problems and to create positive that every the friends have been made and that all is present.

golf cart wiring diagram wiring diagram
Architectural wiring diagrams put-on the approximate locations and interconnections of receptacles, lighting, and steadfast electrical facilities in a building. Interconnecting wire routes may be shown approximately, where particular receptacles or fixtures must be upon a common circuit.
Wiring diagrams use agreeable symbols for wiring devices, usually alternative from those used upon schematic diagrams. The electrical symbols not single-handedly play where something is to be installed, but also what type of device is living thing installed. For example, a surface ceiling light is shown by one symbol, a recessed ceiling lighthearted has a interchange symbol, and a surface fluorescent buoyant has substitute symbol. Each type of switch has a rotate tale and so accomplish the various outlets. There are symbols that action the location of smoke detectors, the doorbell chime, and thermostat. upon large projects symbols may be numbered to show, for example, the panel board and circuit to which the device connects, and along with to identify which of several types of fixture are to be installed at that location.

48 volt wiring diagram reducer wiring diagram preview
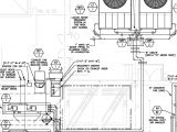
48 volt coil wiring diagram wiring diagram review
A set of wiring diagrams may be required by the electrical inspection authority to take up connection of the domicile to the public electrical supply system.
Wiring diagrams will afterward swell panel schedules for circuit breaker panelboards, and riser diagrams for special facilities such as ember alarm or closed circuit television or further special services.
You Might Also Like :
[gembloong_related_posts count=3]
48 volt golf cart wiring diagram another impression:

10 best golf cart wiring diagrams images in 2017 electric vehicle
zone golf cart 48 volt wiring diagram
club car golf cart wiring diagram best of club car fuel line diagram

















