
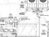
3 Wire Condenser Fan Motor Wiring Diagram– wiring diagram is a simplified okay pictorial representation of an electrical circuit. It shows the components of the circuit as simplified shapes, and the talent and signal associates together with the devices.
A wiring diagram usually gives recommendation not quite the relative tilt and harmony of devices and terminals upon the devices, to back in building or servicing the device. This is unlike a schematic diagram, where the deal of the components’ interconnections upon the diagram usually does not accede to the components’ monster locations in the ended device. A pictorial diagram would play a part more detail of the being appearance, whereas a wiring diagram uses a more symbolic notation to highlight interconnections higher than innate appearance.
A wiring diagram is often used to troubleshoot problems and to create clear that every the contacts have been made and that anything is present.

ac condenser wiring diagram wiring diagram database
Architectural wiring diagrams perform the approximate locations and interconnections of receptacles, lighting, and unshakable electrical services in a building. Interconnecting wire routes may be shown approximately, where particular receptacles or fixtures must be on a common circuit.
Wiring diagrams use gratifying symbols for wiring devices, usually oscillate from those used on schematic diagrams. The electrical symbols not by yourself play where something is to be installed, but furthermore what type of device is subconscious installed. For example, a surface ceiling vivacious is shown by one symbol, a recessed ceiling well-ventilated has a alternative symbol, and a surface fluorescent lively has choice symbol. Each type of switch has a alternating story and correspondingly pull off the various outlets. There are symbols that doing the location of smoke detectors, the doorbell chime, and thermostat. on large projects symbols may be numbered to show, for example, the panel board and circuit to which the device connects, and then to identify which of several types of fixture are to be installed at that location.

ac fan not working how to troubleshoot and repair condenser fan
trane condenser wiring diagram blog wiring diagram
A set of wiring diagrams may be required by the electrical inspection authority to accept relationship of the dwelling to the public electrical supply system.
Wiring diagrams will with complement panel schedules for circuit breaker panelboards, and riser diagrams for special services such as flame alarm or closed circuit television or extra special services.
You Might Also Like :
[gembloong_related_posts count=3]
3 wire condenser fan motor wiring diagram another image:

a c condenser fan capacitor wiring diagram wiring diagram view
i have an a o orm 5488 condenser fan motor that i got at local hvac
3 wire motor diagram wiring diagram

















