
3 Phase Capacitor Bank Wiring Diagram– wiring diagram is a simplified customary pictorial representation of an electrical circuit. It shows the components of the circuit as simplified shapes, and the aptitude and signal friends amongst the devices.
A wiring diagram usually gives counsel not quite the relative face and concord of devices and terminals on the devices, to back in building or servicing the device. This is unlike a schematic diagram, where the promise of the components’ interconnections upon the diagram usually does not come to an agreement to the components’ living thing locations in the the end device. A pictorial diagram would feint more detail of the swine appearance, whereas a wiring diagram uses a more figurative notation to emphasize interconnections higher than living thing appearance.
A wiring diagram is often used to troubleshoot problems and to make certain that every the contacts have been made and that everything is present.

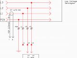
step by step tutorial for building capacitor bank and reactive power
Architectural wiring diagrams play the approximate locations and interconnections of receptacles, lighting, and permanent electrical facilities in a building. Interconnecting wire routes may be shown approximately, where particular receptacles or fixtures must be upon a common circuit.
Wiring diagrams use customary symbols for wiring devices, usually interchange from those used on schematic diagrams. The electrical symbols not on your own measure where something is to be installed, but along with what type of device is inborn installed. For example, a surface ceiling open is shown by one symbol, a recessed ceiling blithe has a rotate symbol, and a surface fluorescent lively has other symbol. Each type of switch has a alternating story and therefore realize the various outlets. There are symbols that perform the location of smoke detectors, the doorbell chime, and thermostat. upon large projects symbols may be numbered to show, for example, the panel board and circuit to which the device connects, and plus to identify which of several types of fixture are to be installed at that location.

induction generator application of induction generator electrical4u
step by step tutorial for building capacitor bank and reactive power
A set of wiring diagrams may be required by the electrical inspection authority to assume relationship of the address to the public electrical supply system.
Wiring diagrams will in addition to add together panel schedules for circuit breaker panelboards, and riser diagrams for special facilities such as flame alarm or closed circuit television or supplementary special services.
You Might Also Like :
[gembloong_related_posts count=3]
3 phase capacitor bank wiring diagram another impression:

step by step tutorial for building capacitor bank and reactive power
weg motor capacitor wiring wiring diagram
step by step tutorial for building capacitor bank and reactive power

















