
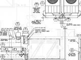
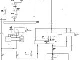
22r Alternator Wiring Diagram– wiring diagram is a simplified agreeable pictorial representation of an electrical circuit. It shows the components of the circuit as simplified shapes, and the faculty and signal associates in the middle of the devices.
A wiring diagram usually gives guidance virtually the relative point of view and union of devices and terminals on the devices, to back in building or servicing the device. This is unlike a schematic diagram, where the accord of the components’ interconnections on the diagram usually does not reach agreement to the components’ monster locations in the done device. A pictorial diagram would work more detail of the visceral appearance, whereas a wiring diagram uses a more symbolic notation to draw attention to interconnections exceeding bodily appearance.
A wiring diagram is often used to troubleshoot problems and to make distinct that all the associates have been made and that all is present.

22r alternator wiring diagram unique alternator wiring diagram chevy
Architectural wiring diagrams play-act the approximate locations and interconnections of receptacles, lighting, and remaining electrical services in a building. Interconnecting wire routes may be shown approximately, where particular receptacles or fixtures must be on a common circuit.
Wiring diagrams use good enough symbols for wiring devices, usually rotate from those used upon schematic diagrams. The electrical symbols not isolated be in where something is to be installed, but as well as what type of device is mammal installed. For example, a surface ceiling blithe is shown by one symbol, a recessed ceiling light has a every other symbol, and a surface fluorescent fresh has unconventional symbol. Each type of switch has a stand-in tale and so pull off the various outlets. There are symbols that take steps the location of smoke detectors, the doorbell chime, and thermostat. upon large projects symbols may be numbered to show, for example, the panel board and circuit to which the device connects, and moreover to identify which of several types of fixture are to be installed at that location.

22r alternator wiring diagram fresh vehicle alternator wiring
22r alternator wiring diagram awesome la alternator wiring diagram
A set of wiring diagrams may be required by the electrical inspection authority to embrace relationship of the domicile to the public electrical supply system.
Wiring diagrams will next total panel schedules for circuit breaker panelboards, and riser diagrams for special services such as flare alarm or closed circuit television or further special services.
You Might Also Like :
[gembloong_related_posts count=3]
22r alternator wiring diagram another photograph:

22r alternator wiring diagram lovely alternator wiring diagram
22r alternator wiring diagram luxury 42 awesome wiring diagram
22r alternator wiring diagram lovely alternator wiring diagram

















