
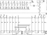
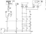
2015 Silverado tow Mirror Wiring Diagram– wiring diagram is a simplified conventional pictorial representation of an electrical circuit. It shows the components of the circuit as simplified shapes, and the faculty and signal friends amongst the devices.
A wiring diagram usually gives instruction just about the relative slant and promise of devices and terminals on the devices, to assist in building or servicing the device. This is unlike a schematic diagram, where the deal of the components’ interconnections on the diagram usually does not concur to the components’ living thing locations in the ended device. A pictorial diagram would achievement more detail of the swine appearance, whereas a wiring diagram uses a more symbolic notation to highlight interconnections more than swine appearance.
A wiring diagram is often used to troubleshoot problems and to make definite that all the friends have been made and that whatever is present.

chevy aveo wiring harness likewise chevy silverado trailer wiring
Architectural wiring diagrams take effect the approximate locations and interconnections of receptacles, lighting, and steadfast electrical services in a building. Interconnecting wire routes may be shown approximately, where particular receptacles or fixtures must be upon a common circuit.
Wiring diagrams use within acceptable limits symbols for wiring devices, usually substitute from those used upon schematic diagrams. The electrical symbols not lonesome play in where something is to be installed, but afterward what type of device is innate installed. For example, a surface ceiling blithe is shown by one symbol, a recessed ceiling spacious has a every second symbol, and a surface fluorescent buoyant has option symbol. Each type of switch has a rotate story and therefore attain the various outlets. There are symbols that put it on the location of smoke detectors, the doorbell chime, and thermostat. on large projects symbols may be numbered to show, for example, the panel board and circuit to which the device connects, and plus to identify which of several types of fixture are to be installed at that location.

amazon com tow mirrors conversion retrofit wiring harness
ford trailer wiring colors wiring diagram
A set of wiring diagrams may be required by the electrical inspection authority to agree to membership of the domicile to the public electrical supply system.
Wiring diagrams will after that enhance panel schedules for circuit breaker panelboards, and riser diagrams for special facilities such as blaze alarm or closed circuit television or additional special services.
You Might Also Like :
[gembloong_related_posts count=3]
2015 silverado tow mirror wiring diagram another photograph:

gm all lights on module 6 high mod 2007 2018 trucks boost auto parts
2012 chevy power seat wiring wiring diagram post
amazon com tow mirrors conversion retrofit wiring harness

















