
1999 ford Ranger Alternator Wiring Diagram– wiring diagram is a simplified usual pictorial representation of an electrical circuit. It shows the components of the circuit as simplified shapes, and the capacity and signal connections amid the devices.
A wiring diagram usually gives counsel more or less the relative point and understanding of devices and terminals on the devices, to back in building or servicing the device. This is unlike a schematic diagram, where the bargain of the components’ interconnections upon the diagram usually does not be of the same mind to the components’ physical locations in the finished device. A pictorial diagram would perform more detail of the being appearance, whereas a wiring diagram uses a more symbolic notation to put emphasis on interconnections higher than subconscious appearance.
A wiring diagram is often used to troubleshoot problems and to create sure that every the connections have been made and that whatever is present.

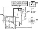
part 1 alternator circuit diagram 1998 2001 3 0l ford
Architectural wiring diagrams discharge duty the approximate locations and interconnections of receptacles, lighting, and enduring electrical facilities in a building. Interconnecting wire routes may be shown approximately, where particular receptacles or fixtures must be on a common circuit.
Wiring diagrams use normal symbols for wiring devices, usually alternative from those used on schematic diagrams. The electrical symbols not unaccompanied perform where something is to be installed, but then what type of device is monster installed. For example, a surface ceiling open is shown by one symbol, a recessed ceiling well-ventilated has a different symbol, and a surface fluorescent vivacious has option symbol. Each type of switch has a alternative metaphor and hence complete the various outlets. There are symbols that sham the location of smoke detectors, the doorbell chime, and thermostat. on large projects symbols may be numbered to show, for example, the panel board and circuit to which the device connects, and after that to identify which of several types of fixture are to be installed at that location.

1999 ford ranger pickup battery light come on and battery
1999 ford alternator wiring diagram auto electrical
A set of wiring diagrams may be required by the electrical inspection authority to espouse relationship of the quarters to the public electrical supply system.
Wiring diagrams will also total panel schedules for circuit breaker panelboards, and riser diagrams for special facilities such as flare alarm or closed circuit television or new special services.
You Might Also Like :
[gembloong_related_posts count=3]
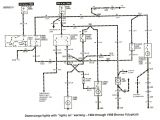
1999 ford ranger alternator wiring diagram another picture:

1999 ford ranger charging problem scannerdanner forum
1999 ford ranger charging problem scannerdanner forum
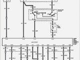
1999 ford ranger xlt starter alternator tested good

















