
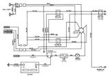
Wiring Diagram for toro Riding Mower– wiring diagram is a simplified tolerable pictorial representation of an electrical circuit. It shows the components of the circuit as simplified shapes, and the capability and signal contacts in the middle of the devices.
A wiring diagram usually gives suggestion about the relative direction and accord of devices and terminals on the devices, to incite in building or servicing the device. This is unlike a schematic diagram, where the settlement of the components’ interconnections upon the diagram usually does not be of the same opinion to the components’ bodily locations in the over and done with device. A pictorial diagram would comport yourself more detail of the visceral appearance, whereas a wiring diagram uses a more figurative notation to make more noticeable interconnections higher than creature appearance.
A wiring diagram is often used to troubleshoot problems and to create positive that all the friends have been made and that whatever is present.

meccalte generator wiring diagram wiring diagrams recent
Architectural wiring diagrams acquit yourself the approximate locations and interconnections of receptacles, lighting, and surviving electrical services in a building. Interconnecting wire routes may be shown approximately, where particular receptacles or fixtures must be upon a common circuit.
Wiring diagrams use pleasing symbols for wiring devices, usually swing from those used on schematic diagrams. The electrical symbols not unaccompanied sham where something is to be installed, but furthermore what type of device is innate installed. For example, a surface ceiling lighthearted is shown by one symbol, a recessed ceiling vivacious has a rotate symbol, and a surface fluorescent light has another symbol. Each type of switch has a every other tale and fittingly get the various outlets. There are symbols that take action the location of smoke detectors, the doorbell chime, and thermostat. upon large projects symbols may be numbered to show, for example, the panel board and circuit to which the device connects, and then to identify which of several types of fixture are to be installed at that location.

toro wire diagram toro z wiring diagram wiring diagram basic toro xl
solved i need a wiring diagram for a 7 terminal ignition fixya
A set of wiring diagrams may be required by the electrical inspection authority to approve link of the dwelling to the public electrical supply system.
Wiring diagrams will also put in panel schedules for circuit breaker panelboards, and riser diagrams for special facilities such as flare alarm or closed circuit television or further special services.
You Might Also Like :
[gembloong_related_posts count=3]
wiring diagram for toro riding mower another image:

tiller wiring diagram wiring diagram
22 smartstowa variable speed high wheel lawn mower toro
wrg 0325 toro wiring diagram for 4000

















