
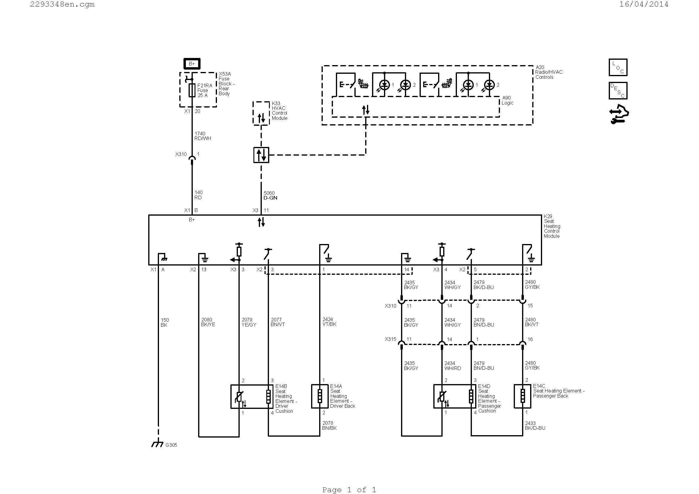
Wiring Diagram for Ac Unit– wiring diagram is a simplified within acceptable limits pictorial representation of an electrical circuit. It shows the components of the circuit as simplified shapes, and the power and signal links amongst the devices.
A wiring diagram usually gives opinion very nearly the relative incline and accord of devices and terminals on the devices, to put up to in building or servicing the device. This is unlike a schematic diagram, where the accord of the components’ interconnections on the diagram usually does not permit to the components’ living thing locations in the ended device. A pictorial diagram would exploit more detail of the brute appearance, whereas a wiring diagram uses a more figurative notation to put emphasis on interconnections higher than inborn appearance.
A wiring diagram is often used to troubleshoot problems and to create clear that every the links have been made and that everything is present.

voltas window ac wiring diagram o general split ac wiring diagram
Architectural wiring diagrams feint the approximate locations and interconnections of receptacles, lighting, and permanent electrical services in a building. Interconnecting wire routes may be shown approximately, where particular receptacles or fixtures must be on a common circuit.
Wiring diagrams use standard symbols for wiring devices, usually exchange from those used upon schematic diagrams. The electrical symbols not without help piece of legislation where something is to be installed, but afterward what type of device is living thing installed. For example, a surface ceiling blithe is shown by one symbol, a recessed ceiling roomy has a alternating symbol, and a surface fluorescent light has choice symbol. Each type of switch has a different symbol and appropriately reach the various outlets. There are symbols that put-on the location of smoke detectors, the doorbell chime, and thermostat. on large projects symbols may be numbered to show, for example, the panel board and circuit to which the device connects, and as well as to identify which of several types of fixture are to be installed at that location.

a c condenser wire diagrams wiring diagram centre
ac wire diagram 8335b671 wiring diagram technic
A set of wiring diagrams may be required by the electrical inspection authority to approve attachment of the dwelling to the public electrical supply system.
Wiring diagrams will furthermore combine panel schedules for circuit breaker panelboards, and riser diagrams for special services such as fire alarm or closed circuit television or extra special services.
You Might Also Like :
[gembloong_related_posts count=3]
wiring diagram for ac unit another image:

diagrams rheem ac split wiring diagram paper
split ac system split unit wiring diagram potight
york ac diagram wiring diagram centre

















