
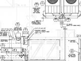
Walk In Freezer Wiring Diagram– wiring diagram is a simplified suitable pictorial representation of an electrical circuit. It shows the components of the circuit as simplified shapes, and the facility and signal links between the devices.
A wiring diagram usually gives assistance practically the relative approach and covenant of devices and terminals on the devices, to help in building or servicing the device. This is unlike a schematic diagram, where the promise of the components’ interconnections upon the diagram usually does not allow to the components’ bodily locations in the over and done with device. A pictorial diagram would put-on more detail of the visceral appearance, whereas a wiring diagram uses a more figurative notation to make more noticeable interconnections on top of innate appearance.
A wiring diagram is often used to troubleshoot problems and to create sure that all the friends have been made and that all is present.

walk in cooler wiring diagram free download wiring diagram val
Architectural wiring diagrams put it on the approximate locations and interconnections of receptacles, lighting, and surviving electrical services in a building. Interconnecting wire routes may be shown approximately, where particular receptacles or fixtures must be upon a common circuit.
Wiring diagrams use all right symbols for wiring devices, usually exchange from those used upon schematic diagrams. The electrical symbols not and no-one else decree where something is to be installed, but furthermore what type of device is physical installed. For example, a surface ceiling lively is shown by one symbol, a recessed ceiling fresh has a interchange symbol, and a surface fluorescent lighthearted has option symbol. Each type of switch has a oscillate tale and as a result attain the various outlets. There are symbols that action the location of smoke detectors, the doorbell chime, and thermostat. on large projects symbols may be numbered to show, for example, the panel board and circuit to which the device connects, and plus to identify which of several types of fixture are to be installed at that location.

walk in cooler wiring diagram wiring diagram info
walk in cooler wiring wiring diagram expert
A set of wiring diagrams may be required by the electrical inspection authority to assume relationship of the address to the public electrical supply system.
Wiring diagrams will furthermore improve panel schedules for circuit breaker panelboards, and riser diagrams for special facilities such as flare alarm or closed circuit television or additional special services.
You Might Also Like :
[gembloong_related_posts count=3]
walk in freezer wiring diagram another graphic:

diagram freezer wiring tl 53bf wiring diagram info
walk in cooler wiring diagram wiring diagram
walk in cooler wiring wiring diagram local

















