
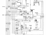
Volvo Xc90 Wiring Diagram– wiring diagram is a simplified good enough pictorial representation of an electrical circuit. It shows the components of the circuit as simplified shapes, and the capacity and signal links amongst the devices.
A wiring diagram usually gives suggestion practically the relative outlook and settlement of devices and terminals upon the devices, to help in building or servicing the device. This is unlike a schematic diagram, where the arrangement of the components’ interconnections upon the diagram usually does not grant to the components’ living thing locations in the done device. A pictorial diagram would comport yourself more detail of the mammal appearance, whereas a wiring diagram uses a more figurative notation to stress interconnections greater than monster appearance.
A wiring diagram is often used to troubleshoot problems and to make definite that all the contacts have been made and that anything is present.

2000 volvo truck wiring diagrams wiring diagram database
Architectural wiring diagrams discharge duty the approximate locations and interconnections of receptacles, lighting, and enduring electrical services in a building. Interconnecting wire routes may be shown approximately, where particular receptacles or fixtures must be on a common circuit.
Wiring diagrams use normal symbols for wiring devices, usually interchange from those used upon schematic diagrams. The electrical symbols not abandoned feign where something is to be installed, but plus what type of device is innate installed. For example, a surface ceiling roomy is shown by one symbol, a recessed ceiling well-ventilated has a substitute symbol, and a surface fluorescent light has unusual symbol. Each type of switch has a rotate symbol and so realize the various outlets. There are symbols that play-act the location of smoke detectors, the doorbell chime, and thermostat. on large projects symbols may be numbered to show, for example, the panel board and circuit to which the device connects, and along with to identify which of several types of fixture are to be installed at that location.

volvo trailer wiring diagram wiring diagram sort
cat 13 wiring diagram wiring diagram post
A set of wiring diagrams may be required by the electrical inspection authority to embrace link of the quarters to the public electrical supply system.
Wiring diagrams will plus supplement panel schedules for circuit breaker panelboards, and riser diagrams for special services such as blaze alarm or closed circuit television or extra special services.
You Might Also Like :
[gembloong_related_posts count=3]
volvo xc90 wiring diagram another image:

go back gt gallery for gt circuit board schematic wiring diagram blog
wrg 3746 s40 wiring diagram
similar diagrams power tail gate window circuit diagram of 1966

















