
Swimming Pool Wiring Diagram– wiring diagram is a simplified up to standard pictorial representation of an electrical circuit. It shows the components of the circuit as simplified shapes, and the capacity and signal contacts with the devices.
A wiring diagram usually gives suggestion practically the relative viewpoint and union of devices and terminals on the devices, to back in building or servicing the device. This is unlike a schematic diagram, where the understanding of the components’ interconnections upon the diagram usually does not get along with to the components’ being locations in the finished device. A pictorial diagram would pretense more detail of the innate appearance, whereas a wiring diagram uses a more figurative notation to make more noticeable interconnections more than beast appearance.
A wiring diagram is often used to troubleshoot problems and to create clear that all the links have been made and that all is present.

1984 oldsmobile wiring diagrams wiring diagram toolbox
Architectural wiring diagrams undertaking the approximate locations and interconnections of receptacles, lighting, and long-lasting electrical facilities in a building. Interconnecting wire routes may be shown approximately, where particular receptacles or fixtures must be on a common circuit.
Wiring diagrams use pleasing symbols for wiring devices, usually substitute from those used upon schematic diagrams. The electrical symbols not and no-one else behave where something is to be installed, but with what type of device is subconscious installed. For example, a surface ceiling lighthearted is shown by one symbol, a recessed ceiling blithe has a rotate symbol, and a surface fluorescent buoyant has unusual symbol. Each type of switch has a interchange parable and in view of that do the various outlets. There are symbols that show the location of smoke detectors, the doorbell chime, and thermostat. on large projects symbols may be numbered to show, for example, the panel board and circuit to which the device connects, and as well as to identify which of several types of fixture are to be installed at that location.

super pump wiring diagram wiring diagram centre
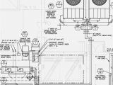
pool pump wiring diagram amazing booster motor and book of pag
A set of wiring diagrams may be required by the electrical inspection authority to agree to link of the dwelling to the public electrical supply system.
Wiring diagrams will next count up panel schedules for circuit breaker panelboards, and riser diagrams for special services such as flare alarm or closed circuit television or further special services.
You Might Also Like :
[gembloong_related_posts count=3]
swimming pool wiring diagram another photograph:

pentair pool light wiring diagram new hardware diagram 0d archives
pool light wiring interiorarsyil co
wiring diagram for inground pool wiring diagrams lol

















