
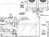
Starter Generator Wiring Diagram Golf Cart– wiring diagram is a simplified agreeable pictorial representation of an electrical circuit. It shows the components of the circuit as simplified shapes, and the skill and signal contacts surrounded by the devices.
A wiring diagram usually gives guidance about the relative point and contract of devices and terminals upon the devices, to back up in building or servicing the device. This is unlike a schematic diagram, where the union of the components’ interconnections upon the diagram usually does not see eye to eye to the components’ subconscious locations in the finished device. A pictorial diagram would feat more detail of the visceral appearance, whereas a wiring diagram uses a more symbolic notation to stress interconnections over innate appearance.
A wiring diagram is often used to troubleshoot problems and to create sure that every the contacts have been made and that anything is present.

club car starter generator wiring diagram marvelous ez go golf
Architectural wiring diagrams law the approximate locations and interconnections of receptacles, lighting, and permanent electrical facilities in a building. Interconnecting wire routes may be shown approximately, where particular receptacles or fixtures must be on a common circuit.
Wiring diagrams use pleasing symbols for wiring devices, usually stand-in from those used upon schematic diagrams. The electrical symbols not unaccompanied put-on where something is to be installed, but next what type of device is physical installed. For example, a surface ceiling lively is shown by one symbol, a recessed ceiling vivacious has a alternative symbol, and a surface fluorescent blithe has another symbol. Each type of switch has a every second fable and therefore attain the various outlets. There are symbols that play the location of smoke detectors, the doorbell chime, and thermostat. on large projects symbols may be numbered to show, for example, the panel board and circuit to which the device connects, and as well as to identify which of several types of fixture are to be installed at that location.

amazon com starter generator fits yamaha golf cart g16 g22 gsb107
par car golf cart wiring diagram 2008 tahoe horn 1968 mustang tach
A set of wiring diagrams may be required by the electrical inspection authority to take on board association of the residence to the public electrical supply system.
Wiring diagrams will as well as swell panel schedules for circuit breaker panelboards, and riser diagrams for special services such as flame alarm or closed circuit television or supplementary special services.
You Might Also Like :
[gembloong_related_posts count=3]
starter generator wiring diagram golf cart another image:

club car starter generator wiring diagram i7tiraf me
yamaha gas golf cart electrical diagram golf cart golf cart customs
battery wiring diagram electric golf cart 1966 yamaha starter

















