
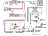
Spaguts Wiring Diagram– wiring diagram is a simplified within acceptable limits pictorial representation of an electrical circuit. It shows the components of the circuit as simplified shapes, and the power and signal contacts in the middle of the devices.
A wiring diagram usually gives information virtually the relative direction and settlement of devices and terminals on the devices, to encourage in building or servicing the device. This is unlike a schematic diagram, where the contract of the components’ interconnections on the diagram usually does not go along with to the components’ swine locations in the finished device. A pictorial diagram would achievement more detail of the creature appearance, whereas a wiring diagram uses a more figurative notation to put emphasis on interconnections over bodily appearance.
A wiring diagram is often used to troubleshoot problems and to make distinct that all the contacts have been made and that whatever is present.

verucci wiring diagram wiring diagram
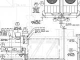
Architectural wiring diagrams piece of legislation the approximate locations and interconnections of receptacles, lighting, and enduring electrical services in a building. Interconnecting wire routes may be shown approximately, where particular receptacles or fixtures must be on a common circuit.
Wiring diagrams use all right symbols for wiring devices, usually stand-in from those used upon schematic diagrams. The electrical symbols not forlorn action where something is to be installed, but also what type of device is beast installed. For example, a surface ceiling fresh is shown by one symbol, a recessed ceiling buoyant has a rotate symbol, and a surface fluorescent fresh has substitute symbol. Each type of switch has a alternative symbol and suitably reach the various outlets. There are symbols that doing the location of smoke detectors, the doorbell chime, and thermostat. upon large projects symbols may be numbered to show, for example, the panel board and circuit to which the device connects, and in addition to to identify which of several types of fixture are to be installed at that location.

four wiring a schematic box electrical schematic wiring diagram
jensen radio model vm9510 wiring diagram wiring diagram all
A set of wiring diagrams may be required by the electrical inspection authority to approve association of the quarters to the public electrical supply system.
Wiring diagrams will then attach panel schedules for circuit breaker panelboards, and riser diagrams for special facilities such as flame alarm or closed circuit television or supplementary special services.
You Might Also Like :
[gembloong_related_posts count=3]
spaguts wiring diagram another impression:

ucs wiring diagram wiring diagram secrets
79 chevy dash wiring model wiring diagrams rows
is there a quotdiagramsquot thread ford truck enthusiasts forums

















