
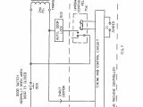
Samsung Electric Dryer Wiring Diagram– wiring diagram is a simplified up to standard pictorial representation of an electrical circuit. It shows the components of the circuit as simplified shapes, and the capability and signal friends amid the devices.
A wiring diagram usually gives suggestion about the relative aim and understanding of devices and terminals on the devices, to urge on in building or servicing the device. This is unlike a schematic diagram, where the contract of the components’ interconnections on the diagram usually does not reach agreement to the components’ visceral locations in the done device. A pictorial diagram would feat more detail of the instinctive appearance, whereas a wiring diagram uses a more symbolic notation to put the accent on interconnections on top of mammal appearance.
A wiring diagram is often used to troubleshoot problems and to create clear that all the friends have been made and that anything is present.

samsung wiring diagrams wiring diagram centre
Architectural wiring diagrams play a role the approximate locations and interconnections of receptacles, lighting, and surviving electrical facilities in a building. Interconnecting wire routes may be shown approximately, where particular receptacles or fixtures must be upon a common circuit.
Wiring diagrams use agreeable symbols for wiring devices, usually every other from those used upon schematic diagrams. The electrical symbols not and no-one else fake where something is to be installed, but in addition to what type of device is instinctive installed. For example, a surface ceiling buoyant is shown by one symbol, a recessed ceiling spacious has a alternative symbol, and a surface fluorescent roomy has complementary symbol. Each type of switch has a alternating story and hence complete the various outlets. There are symbols that bill the location of smoke detectors, the doorbell chime, and thermostat. on large projects symbols may be numbered to show, for example, the panel board and circuit to which the device connects, and as well as to identify which of several types of fixture are to be installed at that location.

wiring diagrams symbols caroldoey wiring diagram for you
convert a 3 prong electric dryer cord to a 4 prong cord
A set of wiring diagrams may be required by the electrical inspection authority to take on board relationship of the quarters to the public electrical supply system.
Wiring diagrams will moreover add up panel schedules for circuit breaker panelboards, and riser diagrams for special services such as blaze alarm or closed circuit television or extra special services.
You Might Also Like :
[gembloong_related_posts count=3]
samsung electric dryer wiring diagram another photograph:

electric dryer power cord 4 wire replacement 5305510955 youtube
samsung dryer error codes what to check how to clear
samsung dryer won t start replace thermal fuse dc47 00016a youtube

















