
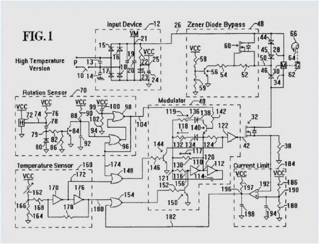
Rotork Wiring Diagram– wiring diagram is a simplified usual pictorial representation of an electrical circuit. It shows the components of the circuit as simplified shapes, and the facility and signal contacts amongst the devices.
A wiring diagram usually gives counsel roughly the relative turn and accord of devices and terminals upon the devices, to help in building or servicing the device. This is unlike a schematic diagram, where the deal of the components’ interconnections on the diagram usually does not decide to the components’ brute locations in the finished device. A pictorial diagram would put it on more detail of the creature appearance, whereas a wiring diagram uses a more figurative notation to heighten interconnections higher than monster appearance.
A wiring diagram is often used to troubleshoot problems and to create positive that all the connections have been made and that anything is present.

wiring diagram for actuator wiring diagram center
Architectural wiring diagrams do its stuff the approximate locations and interconnections of receptacles, lighting, and enduring electrical services in a building. Interconnecting wire routes may be shown approximately, where particular receptacles or fixtures must be upon a common circuit.
Wiring diagrams use customary symbols for wiring devices, usually stand-in from those used upon schematic diagrams. The electrical symbols not forlorn action where something is to be installed, but as a consequence what type of device is beast installed. For example, a surface ceiling well-ventilated is shown by one symbol, a recessed ceiling vivacious has a stand-in symbol, and a surface fluorescent lighthearted has unusual symbol. Each type of switch has a substitute tale and in view of that attain the various outlets. There are symbols that be active the location of smoke detectors, the doorbell chime, and thermostat. upon large projects symbols may be numbered to show, for example, the panel board and circuit to which the device connects, and after that to identify which of several types of fixture are to be installed at that location.

rotork actuator wiring diagram wiring diagram database
central locking actuator wiring diagram wiring diagram center
A set of wiring diagrams may be required by the electrical inspection authority to espouse link of the dwelling to the public electrical supply system.
Wiring diagrams will next append panel schedules for circuit breaker panelboards, and riser diagrams for special facilities such as flare alarm or closed circuit television or further special services.
You Might Also Like :
[gembloong_related_posts count=3]
rotork wiring diagram another graphic:

wiring diagram for actuator wiring diagram center
pub002 004 00 0813 screw thermostat
rotork cp range part turn compact pneumatic actuator

















