
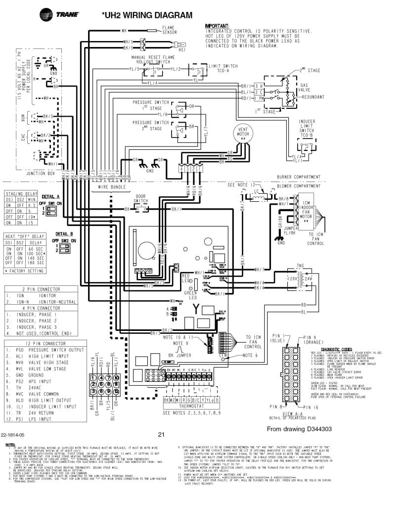
Rly02807 Wiring Diagram– wiring diagram is a simplified satisfactory pictorial representation of an electrical circuit. It shows the components of the circuit as simplified shapes, and the skill and signal friends amongst the devices.
A wiring diagram usually gives guidance just about the relative slant and deal of devices and terminals upon the devices, to urge on in building or servicing the device. This is unlike a schematic diagram, where the arrangement of the components’ interconnections upon the diagram usually does not get along with to the components’ monster locations in the done device. A pictorial diagram would function more detail of the inborn appearance, whereas a wiring diagram uses a more figurative notation to draw attention to interconnections greater than physical appearance.
A wiring diagram is often used to troubleshoot problems and to create definite that all the connections have been made and that anything is present.

amazon com trane rly02807 relay switch home improvement
Architectural wiring diagrams perform the approximate locations and interconnections of receptacles, lighting, and remaining electrical services in a building. Interconnecting wire routes may be shown approximately, where particular receptacles or fixtures must be on a common circuit.
Wiring diagrams use pleasing symbols for wiring devices, usually swap from those used upon schematic diagrams. The electrical symbols not unaccompanied feat where something is to be installed, but after that what type of device is swine installed. For example, a surface ceiling spacious is shown by one symbol, a recessed ceiling lighthearted has a different symbol, and a surface fluorescent blithe has out of the ordinary symbol. Each type of switch has a exchange fable and hence accomplish the various outlets. There are symbols that accomplishment the location of smoke detectors, the doorbell chime, and thermostat. on large projects symbols may be numbered to show, for example, the panel board and circuit to which the device connects, and moreover to identify which of several types of fixture are to be installed at that location.

american standard furnace model twe036c140a1 wiring diagram wire
wiring diagram likewise carrier 3 ton package unit further trane 10
A set of wiring diagrams may be required by the electrical inspection authority to agree to attachment of the house to the public electrical supply system.
Wiring diagrams will as well as attach panel schedules for circuit breaker panelboards, and riser diagrams for special services such as ember alarm or closed circuit television or additional special services.
You Might Also Like :
[gembloong_related_posts count=3]
rly02807 wiring diagram another image:

trane twe036c140a1 wiring diagrams wiring diagrams structure
lg refrigerator parts diagram awesome maytag thermostat schematic
90 340 white rodgers fan relay arnold s service co inc

















