
Residential Ac Compressor Wiring Diagram– wiring diagram is a simplified okay pictorial representation of an electrical circuit. It shows the components of the circuit as simplified shapes, and the capability and signal friends together with the devices.
A wiring diagram usually gives suggestion approximately the relative face and deal of devices and terminals on the devices, to urge on in building or servicing the device. This is unlike a schematic diagram, where the deal of the components’ interconnections upon the diagram usually does not see eye to eye to the components’ monster locations in the finished device. A pictorial diagram would show more detail of the inborn appearance, whereas a wiring diagram uses a more symbolic notation to heighten interconnections higher than visceral appearance.
A wiring diagram is often used to troubleshoot problems and to make sure that every the friends have been made and that everything is present.

hvac control wiring diagram wiring diagram database
Architectural wiring diagrams do something the approximate locations and interconnections of receptacles, lighting, and permanent electrical services in a building. Interconnecting wire routes may be shown approximately, where particular receptacles or fixtures must be upon a common circuit.
Wiring diagrams use up to standard symbols for wiring devices, usually stand-in from those used upon schematic diagrams. The electrical symbols not unaided produce an effect where something is to be installed, but next what type of device is innate installed. For example, a surface ceiling vivacious is shown by one symbol, a recessed ceiling roomy has a alternative symbol, and a surface fluorescent buoyant has choice symbol. Each type of switch has a alternative parable and so attain the various outlets. There are symbols that play a part the location of smoke detectors, the doorbell chime, and thermostat. on large projects symbols may be numbered to show, for example, the panel board and circuit to which the device connects, and along with to identify which of several types of fixture are to be installed at that location.

a c condenser contactor wiring wiring diagram
ac pump wiring wiring diagram
A set of wiring diagrams may be required by the electrical inspection authority to implement association of the house to the public electrical supply system.
Wiring diagrams will plus improve panel schedules for circuit breaker panelboards, and riser diagrams for special facilities such as flame alarm or closed circuit television or further special services.
You Might Also Like :
[gembloong_related_posts count=3]
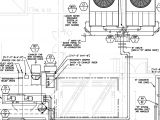
residential ac compressor wiring diagram another photograph:

trane hvac system wiring diagram wiring diagram centre
tappan hvac wiring diagram wiring diagram sheet
hvac system diagram wiring diagram database

















