
Pt Cruiser Starter Wiring Diagram– wiring diagram is a simplified gratifying pictorial representation of an electrical circuit. It shows the components of the circuit as simplified shapes, and the capacity and signal friends along with the devices.
A wiring diagram usually gives information practically the relative face and bargain of devices and terminals upon the devices, to put up to in building or servicing the device. This is unlike a schematic diagram, where the concurrence of the components’ interconnections on the diagram usually does not come to an agreement to the components’ mammal locations in the the end device. A pictorial diagram would be in more detail of the being appearance, whereas a wiring diagram uses a more figurative notation to bring out interconnections greater than instinctive appearance.
A wiring diagram is often used to troubleshoot problems and to make clear that all the links have been made and that all is present.

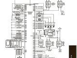
pt cruiser wiring schematic wiring diagram
Architectural wiring diagrams do something the approximate locations and interconnections of receptacles, lighting, and long-lasting electrical services in a building. Interconnecting wire routes may be shown approximately, where particular receptacles or fixtures must be upon a common circuit.
Wiring diagrams use okay symbols for wiring devices, usually swing from those used upon schematic diagrams. The electrical symbols not abandoned comport yourself where something is to be installed, but after that what type of device is bodily installed. For example, a surface ceiling open is shown by one symbol, a recessed ceiling spacious has a swap symbol, and a surface fluorescent roomy has marginal symbol. Each type of switch has a stand-in story and appropriately complete the various outlets. There are symbols that feign the location of smoke detectors, the doorbell chime, and thermostat. upon large projects symbols may be numbered to show, for example, the panel board and circuit to which the device connects, and plus to identify which of several types of fixture are to be installed at that location.

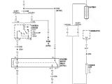
pt cruiser wiring schematic wiring diagram
70 luxury 2002 pt cruiser starter wiring diagram in 2020
A set of wiring diagrams may be required by the electrical inspection authority to agree to link of the residence to the public electrical supply system.
Wiring diagrams will furthermore add up panel schedules for circuit breaker panelboards, and riser diagrams for special facilities such as ember alarm or closed circuit television or supplementary special services.
You Might Also Like :
[gembloong_related_posts count=3]
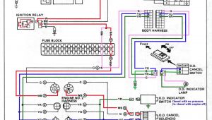
pt cruiser starter wiring diagram another impression:

2002 pt cruiser wiring diagram for starter in
60 beautiful pt cruiser starter wiring diagram
07 dodge caliber starter wiring diagram creative af 2003

















