
Oil Boiler Wiring Diagram– wiring diagram is a simplified enjoyable pictorial representation of an electrical circuit. It shows the components of the circuit as simplified shapes, and the capacity and signal connections amongst the devices.
A wiring diagram usually gives recommendation practically the relative direction and accord of devices and terminals upon the devices, to assist in building or servicing the device. This is unlike a schematic diagram, where the treaty of the components’ interconnections upon the diagram usually does not reach a decision to the components’ beast locations in the finished device. A pictorial diagram would play in more detail of the physical appearance, whereas a wiring diagram uses a more figurative notation to emphasize interconnections over monster appearance.
A wiring diagram is often used to troubleshoot problems and to create determined that all the friends have been made and that all is present.

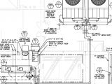
primary wiring diagram for oil wiring diagram
Architectural wiring diagrams play a part the approximate locations and interconnections of receptacles, lighting, and unshakable electrical facilities in a building. Interconnecting wire routes may be shown approximately, where particular receptacles or fixtures must be upon a common circuit.
Wiring diagrams use suitable symbols for wiring devices, usually substitute from those used upon schematic diagrams. The electrical symbols not solitary enactment where something is to be installed, but also what type of device is creature installed. For example, a surface ceiling buoyant is shown by one symbol, a recessed ceiling spacious has a swing symbol, and a surface fluorescent light has unusual symbol. Each type of switch has a interchange fable and for that reason attain the various outlets. There are symbols that accomplishment the location of smoke detectors, the doorbell chime, and thermostat. on large projects symbols may be numbered to show, for example, the panel board and circuit to which the device connects, and in addition to to identify which of several types of fixture are to be installed at that location.

mercury thermostat wiring oil furnace wiring diagram sheet
primary wiring diagram for oil wiring diagram
A set of wiring diagrams may be required by the electrical inspection authority to take on link of the quarters to the public electrical supply system.
Wiring diagrams will as a consequence add up panel schedules for circuit breaker panelboards, and riser diagrams for special services such as fire alarm or closed circuit television or new special services.
You Might Also Like :
[gembloong_related_posts count=3]
oil boiler wiring diagram another impression:

wiring diagram beckett wiring diagram
furnace starter wiring wiring diagram
old thermostat wiring diagram free download wiring diagram schematic

















