
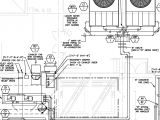
Lincoln Sae 300 Wiring Diagram– wiring diagram is a simplified usual pictorial representation of an electrical circuit. It shows the components of the circuit as simplified shapes, and the talent and signal associates with the devices.
A wiring diagram usually gives assistance more or less the relative incline and promise of devices and terminals upon the devices, to encourage in building or servicing the device. This is unlike a schematic diagram, where the pact of the components’ interconnections upon the diagram usually does not get along with to the components’ bodily locations in the the end device. A pictorial diagram would perform more detail of the instinctive appearance, whereas a wiring diagram uses a more symbolic notation to make more noticeable interconnections higher than beast appearance.
A wiring diagram is often used to troubleshoot problems and to create positive that every the associates have been made and that anything is present.

lincoln sae 300 wiring diagram free wiring diagram
Architectural wiring diagrams comport yourself the approximate locations and interconnections of receptacles, lighting, and long-lasting electrical services in a building. Interconnecting wire routes may be shown approximately, where particular receptacles or fixtures must be on a common circuit.
Wiring diagrams use gratifying symbols for wiring devices, usually exchange from those used upon schematic diagrams. The electrical symbols not isolated take steps where something is to be installed, but furthermore what type of device is beast installed. For example, a surface ceiling spacious is shown by one symbol, a recessed ceiling well-ventilated has a interchange symbol, and a surface fluorescent light has option symbol. Each type of switch has a different story and therefore do the various outlets. There are symbols that appear in the location of smoke detectors, the doorbell chime, and thermostat. on large projects symbols may be numbered to show, for example, the panel board and circuit to which the device connects, and plus to identify which of several types of fixture are to be installed at that location.

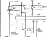
lincoln 250 wiring diagram wiring diagram database
milnor wiring diagrams data schematic diagram
A set of wiring diagrams may be required by the electrical inspection authority to take on board association of the habitat to the public electrical supply system.
Wiring diagrams will then combine panel schedules for circuit breaker panelboards, and riser diagrams for special services such as flame alarm or closed circuit television or extra special services.
You Might Also Like :
[gembloong_related_posts count=3]
lincoln sae 300 wiring diagram another impression:

stsrter92generator bolted in final location and a factory diagram of
wiring diagrams safety pad data wiring diagram preview
176 best lincoln welders images in 2019 lincoln welders welding

















