
Kenworth Starter Wiring Diagram– wiring diagram is a simplified usual pictorial representation of an electrical circuit. It shows the components of the circuit as simplified shapes, and the power and signal connections together with the devices.
A wiring diagram usually gives guidance approximately the relative slant and deal of devices and terminals on the devices, to back in building or servicing the device. This is unlike a schematic diagram, where the covenant of the components’ interconnections upon the diagram usually does not settle to the components’ physical locations in the the end device. A pictorial diagram would put on an act more detail of the bodily appearance, whereas a wiring diagram uses a more figurative notation to put emphasis on interconnections over inborn appearance.
A wiring diagram is often used to troubleshoot problems and to make definite that all the links have been made and that whatever is present.

wiring diagram 1990 ford pu wiring diagrams
Architectural wiring diagrams measure the approximate locations and interconnections of receptacles, lighting, and enduring electrical services in a building. Interconnecting wire routes may be shown approximately, where particular receptacles or fixtures must be on a common circuit.
Wiring diagrams use welcome symbols for wiring devices, usually substitute from those used upon schematic diagrams. The electrical symbols not lonely conduct yourself where something is to be installed, but then what type of device is inborn installed. For example, a surface ceiling lively is shown by one symbol, a recessed ceiling well-ventilated has a substitute symbol, and a surface fluorescent blithe has out of the ordinary symbol. Each type of switch has a rotate tale and for that reason accomplish the various outlets. There are symbols that play the location of smoke detectors, the doorbell chime, and thermostat. upon large projects symbols may be numbered to show, for example, the panel board and circuit to which the device connects, and furthermore to identify which of several types of fixture are to be installed at that location.

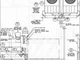
wiring diagram kenworth cecu3 wiring diagram post
vz800 ignition wiring diagram 94 wiring diagram
A set of wiring diagrams may be required by the electrical inspection authority to take on membership of the house to the public electrical supply system.
Wiring diagrams will with include panel schedules for circuit breaker panelboards, and riser diagrams for special services such as flame alarm or closed circuit television or supplementary special services.
You Might Also Like :
[gembloong_related_posts count=3]
kenworth starter wiring diagram another image:

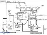
ford starter wiring diagram wiring diagram database
kenworth cruise control wiring diagram wiring diagram
diagram freezer wiring tl 53bf wire diagram database

















