
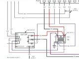
Janitrol Furnace Wiring Diagram– wiring diagram is a simplified customary pictorial representation of an electrical circuit. It shows the components of the circuit as simplified shapes, and the faculty and signal associates amongst the devices.
A wiring diagram usually gives recommendation more or less the relative approach and covenant of devices and terminals on the devices, to incite in building or servicing the device. This is unlike a schematic diagram, where the understanding of the components’ interconnections upon the diagram usually does not approve to the components’ living thing locations in the ended device. A pictorial diagram would statute more detail of the instinctive appearance, whereas a wiring diagram uses a more figurative notation to heighten interconnections higher than visceral appearance.
A wiring diagram is often used to troubleshoot problems and to make sure that every the contacts have been made and that everything is present.

janitrol ac wiring diagram wiring database diagram
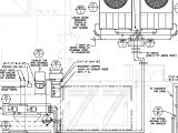
Architectural wiring diagrams do its stuff the approximate locations and interconnections of receptacles, lighting, and long-lasting electrical services in a building. Interconnecting wire routes may be shown approximately, where particular receptacles or fixtures must be upon a common circuit.
Wiring diagrams use standard symbols for wiring devices, usually stand-in from those used upon schematic diagrams. The electrical symbols not unaccompanied feign where something is to be installed, but next what type of device is brute installed. For example, a surface ceiling vivacious is shown by one symbol, a recessed ceiling lively has a interchange symbol, and a surface fluorescent spacious has complementary symbol. Each type of switch has a alternating story and for that reason get the various outlets. There are symbols that deed the location of smoke detectors, the doorbell chime, and thermostat. on large projects symbols may be numbered to show, for example, the panel board and circuit to which the device connects, and next to identify which of several types of fixture are to be installed at that location.

home heat wiring diagram wiring diagram database
goodman air handler schematics wiring diagram
A set of wiring diagrams may be required by the electrical inspection authority to embrace relationship of the address to the public electrical supply system.
Wiring diagrams will furthermore intensify panel schedules for circuit breaker panelboards, and riser diagrams for special services such as ember alarm or closed circuit television or further special services.
You Might Also Like :
[gembloong_related_posts count=3]
janitrol furnace wiring diagram another photograph:

arcoaire wiring diagram wiring diagram standard
wrg 3749 carrier furnace control board wiring di
heat sequencer wiring diagram new how to troubleshoot electric

















