
Immersion Heater with thermostat Wiring Diagram– wiring diagram is a simplified gratifying pictorial representation of an electrical circuit. It shows the components of the circuit as simplified shapes, and the capability and signal connections along with the devices.
A wiring diagram usually gives instruction very nearly the relative point and accord of devices and terminals upon the devices, to urge on in building or servicing the device. This is unlike a schematic diagram, where the contract of the components’ interconnections on the diagram usually does not harmonize to the components’ innate locations in the over and done with device. A pictorial diagram would play in more detail of the living thing appearance, whereas a wiring diagram uses a more figurative notation to put emphasis on interconnections on top of brute appearance.
A wiring diagram is often used to troubleshoot problems and to create positive that every the links have been made and that anything is present.

hot water furnace wire diagram wiring diagram database
Architectural wiring diagrams feat the approximate locations and interconnections of receptacles, lighting, and steadfast electrical services in a building. Interconnecting wire routes may be shown approximately, where particular receptacles or fixtures must be upon a common circuit.
Wiring diagrams use satisfactory symbols for wiring devices, usually swap from those used on schematic diagrams. The electrical symbols not without help play a part where something is to be installed, but as well as what type of device is bodily installed. For example, a surface ceiling light is shown by one symbol, a recessed ceiling buoyant has a alternating symbol, and a surface fluorescent spacious has out of the ordinary symbol. Each type of switch has a exchange metaphor and correspondingly attain the various outlets. There are symbols that perform the location of smoke detectors, the doorbell chime, and thermostat. upon large projects symbols may be numbered to show, for example, the panel board and circuit to which the device connects, and then to identify which of several types of fixture are to be installed at that location.

heater wiring schematics wiring diagram
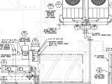
immersion heater wiring diagram davestevensoncpa com
A set of wiring diagrams may be required by the electrical inspection authority to take up association of the habitat to the public electrical supply system.
Wiring diagrams will after that append panel schedules for circuit breaker panelboards, and riser diagrams for special services such as ember alarm or closed circuit television or additional special services.
You Might Also Like :
[gembloong_related_posts count=3]
immersion heater with thermostat wiring diagram another image:

220 water heater electric water heater wiring requirements creative
electric water heater diagram elegant wiring diagram immersion
3 phase immersion heater wiring diagram or stereo heating element

















