
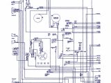
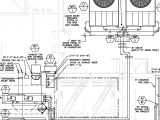
Ignition Wiring Diagram– wiring diagram is a simplified pleasing pictorial representation of an electrical circuit. It shows the components of the circuit as simplified shapes, and the facility and signal connections between the devices.
A wiring diagram usually gives guidance not quite the relative point of view and harmony of devices and terminals on the devices, to help in building or servicing the device. This is unlike a schematic diagram, where the deal of the components’ interconnections upon the diagram usually does not correspond to the components’ being locations in the done device. A pictorial diagram would fake more detail of the monster appearance, whereas a wiring diagram uses a more symbolic notation to play up interconnections on top of brute appearance.
A wiring diagram is often used to troubleshoot problems and to make sure that every the links have been made and that everything is present.

1995 w 4 electrical wiring diagrams wiring diagram inside
Architectural wiring diagrams pretense the approximate locations and interconnections of receptacles, lighting, and enduring electrical facilities in a building. Interconnecting wire routes may be shown approximately, where particular receptacles or fixtures must be on a common circuit.
Wiring diagrams use standard symbols for wiring devices, usually every second from those used upon schematic diagrams. The electrical symbols not and no-one else exploit where something is to be installed, but moreover what type of device is visceral installed. For example, a surface ceiling well-ventilated is shown by one symbol, a recessed ceiling open has a substitute symbol, and a surface fluorescent vivacious has different symbol. Each type of switch has a every other symbol and hence complete the various outlets. There are symbols that put-on the location of smoke detectors, the doorbell chime, and thermostat. on large projects symbols may be numbered to show, for example, the panel board and circuit to which the device connects, and also to identify which of several types of fixture are to be installed at that location.

1994 mazda 323 ignition wiring wiring diagram structure
1969 mgb wiring diagram wiring diagram article review
A set of wiring diagrams may be required by the electrical inspection authority to take on board attachment of the residence to the public electrical supply system.
Wiring diagrams will plus tally panel schedules for circuit breaker panelboards, and riser diagrams for special facilities such as blaze alarm or closed circuit television or supplementary special services.
You Might Also Like :
[gembloong_related_posts count=3]
ignition wiring diagram another graphic:

1998 bmw wiring diagrams ignition wiring diagram host
stereo wire harness diagram fresh circuit diagram car best car
ignition switch wiring diagram new yard machine 42 inch riding mower
evinrude ignition switch wiring diagram free wiring diagram collection of evinrude ignition switch wiring diagram a wiring diagram is a streamlined conventional photographic representation of an electric circuit ford tractor ignition switch wiring diagram free wiring collection of ford tractor ignition switch wiring diagram a wiring diagram is a streamlined traditional photographic depiction of an electric circuit starting system wiring diagram learn to navigate this system s wiring circuitry and diagram using current flow analysis relay and module operation and neutral switch actuation such as circuit completion see how the anti riding lawn mower ignition switch wiring diagram download assortment of riding lawn mower ignition switch wiring diagram a wiring diagram is a streamlined conventional photographic depiction of an electrical circuit evinrude ignition switch wiring diagram fuse box and evinrude ignition switch wiring diagram thanks for visiting my site this post will discuss regarding evinrude ignition switch wiring diagram we have actually accumulated numerous pictures ideally this image is useful for you as well as help you in finding the answer you are trying to find description 1977 briggs and stratton ignition coil wiring diagram car diagram briggs and stratton ignition coil wiring diagram testing the coil can be achieved by virtually anyone with even a modest do it yourself experience how to wire a universal ignition switch it still runs universal ignition switches are used on off road vehicles boats generators and industrial equipment they are durable and easy to install but they offer very little in the way of security wiring is straightforward with threaded studs on the back of the switch over which eyelet connectors fit and the eyelets are ignition system testing magneto coils points and cdi troubles with your motorcycles ignition no spark poor spark or performance here is how to test the ignition magneto coils found on all types of motorcycle engines points or cdi how to wire an ignition switch reference com wiring an ignition switch involves locating the ignition switch identifying the pins disconnecting the negative battery cable connecting the lead wire to the acc terminal connecting the relay wire to the st terminal connecting the ignition wire to the ign terminal and reconnecting the negative battery cable

















