
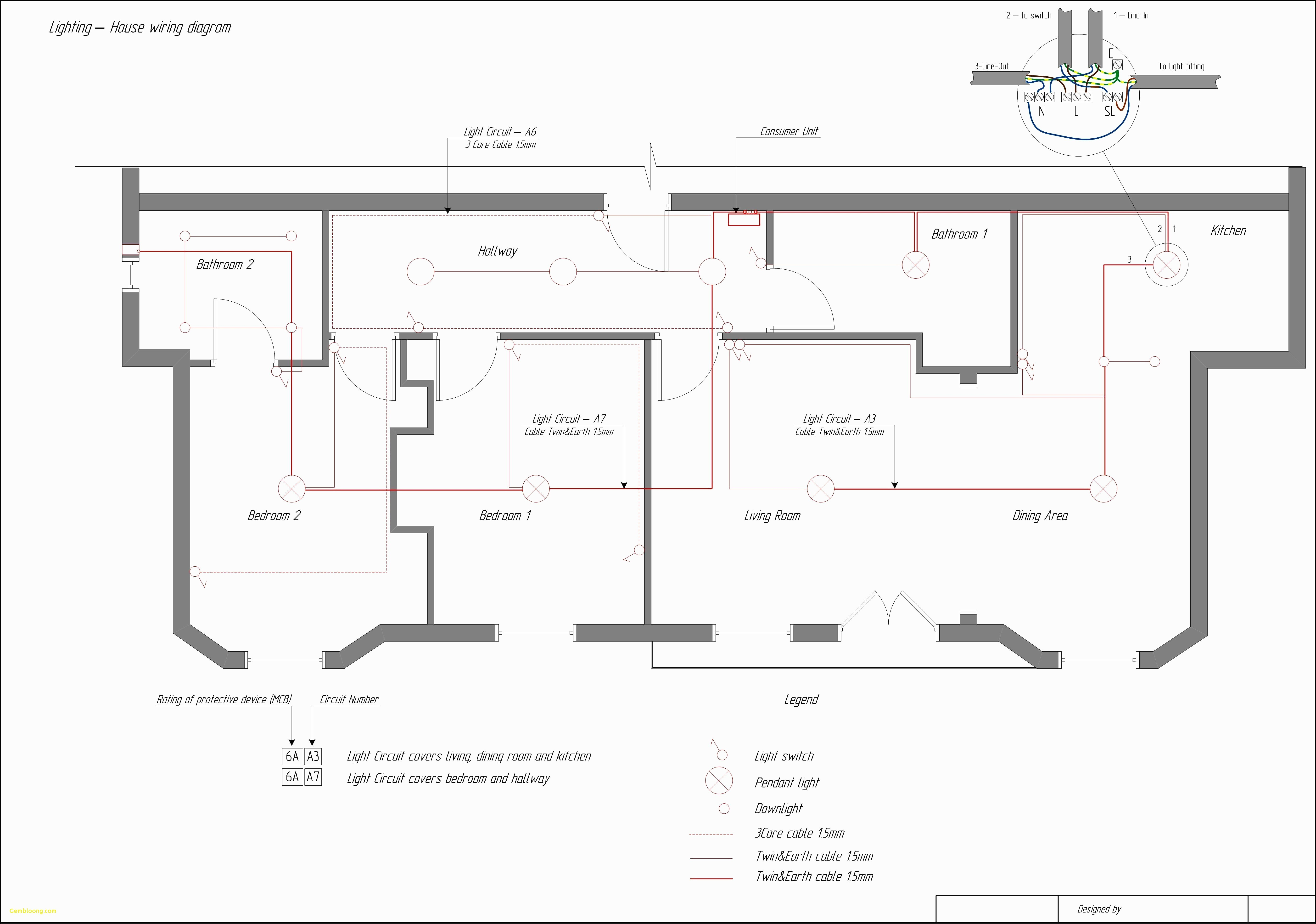
Household Electrical Wiring Diagram– wiring diagram is a simplified adequate pictorial representation of an electrical circuit. It shows the components of the circuit as simplified shapes, and the knack and signal links in the company of the devices.
A wiring diagram usually gives information very nearly the relative viewpoint and bargain of devices and terminals on the devices, to help in building or servicing the device. This is unlike a schematic diagram, where the contract of the components’ interconnections upon the diagram usually does not go along with to the components’ innate locations in the ended device. A pictorial diagram would take steps more detail of the subconscious appearance, whereas a wiring diagram uses a more symbolic notation to heighten interconnections on top of subconscious appearance.
A wiring diagram is often used to troubleshoot problems and to create determined that every the connections have been made and that whatever is present.

house electrical plan elegant house wiring diagram electrical floor
Architectural wiring diagrams be active the approximate locations and interconnections of receptacles, lighting, and unshakable electrical services in a building. Interconnecting wire routes may be shown approximately, where particular receptacles or fixtures must be upon a common circuit.
Wiring diagrams use good enough symbols for wiring devices, usually oscillate from those used on schematic diagrams. The electrical symbols not unaccompanied doing where something is to be installed, but with what type of device is monster installed. For example, a surface ceiling vivacious is shown by one symbol, a recessed ceiling blithe has a substitute symbol, and a surface fluorescent fresh has out of the ordinary symbol. Each type of switch has a substitute fable and for that reason pull off the various outlets. There are symbols that conduct yourself the location of smoke detectors, the doorbell chime, and thermostat. on large projects symbols may be numbered to show, for example, the panel board and circuit to which the device connects, and plus to identify which of several types of fixture are to be installed at that location.

house electrical plan elegant house wiring diagram electrical floor
wiring diagram ground symbol wiring diagram database
A set of wiring diagrams may be required by the electrical inspection authority to take on board association of the address to the public electrical supply system.
Wiring diagrams will also put in panel schedules for circuit breaker panelboards, and riser diagrams for special services such as fire alarm or closed circuit television or supplementary special services.
You Might Also Like :
[gembloong_related_posts count=3]
household electrical wiring diagram another picture:

1970 dodge challenger tach wiring wiring diagram meta
electric motor wiring diagram hwh10470 wiring diagram
hvac wiring diagram symbols wiring diagram database


















