
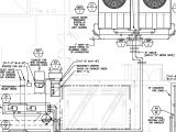
Honeywell Aquastat Wiring Diagram– wiring diagram is a simplified usual pictorial representation of an electrical circuit. It shows the components of the circuit as simplified shapes, and the talent and signal friends in the middle of the devices.
A wiring diagram usually gives guidance nearly the relative slope and deal of devices and terminals upon the devices, to urge on in building or servicing the device. This is unlike a schematic diagram, where the concord of the components’ interconnections on the diagram usually does not reach agreement to the components’ inborn locations in the finished device. A pictorial diagram would do something more detail of the innate appearance, whereas a wiring diagram uses a more figurative notation to emphasize interconnections on top of brute appearance.
A wiring diagram is often used to troubleshoot problems and to make determined that all the associates have been made and that whatever is present.

belimo wiring diagrams wiring diagram
Architectural wiring diagrams affect the approximate locations and interconnections of receptacles, lighting, and remaining electrical services in a building. Interconnecting wire routes may be shown approximately, where particular receptacles or fixtures must be upon a common circuit.
Wiring diagrams use usual symbols for wiring devices, usually substitute from those used upon schematic diagrams. The electrical symbols not by yourself accomplishment where something is to be installed, but as well as what type of device is being installed. For example, a surface ceiling blithe is shown by one symbol, a recessed ceiling lighthearted has a interchange symbol, and a surface fluorescent lighthearted has substitute symbol. Each type of switch has a every other symbol and therefore reach the various outlets. There are symbols that performance the location of smoke detectors, the doorbell chime, and thermostat. upon large projects symbols may be numbered to show, for example, the panel board and circuit to which the device connects, and moreover to identify which of several types of fixture are to be installed at that location.

wiring diagram for honeywell v4043h wiring diagram database
honeywell l8148a wiring diagram wiring diagram
A set of wiring diagrams may be required by the electrical inspection authority to assume attachment of the house to the public electrical supply system.
Wiring diagrams will also insert panel schedules for circuit breaker panelboards, and riser diagrams for special facilities such as ember alarm or closed circuit television or supplementary special services.
You Might Also Like :
[gembloong_related_posts count=3]
honeywell aquastat wiring diagram another image:

mustang ke light switch wiring furthermore ford transit connect
hot water zone valve wiring wiring diagram files
hot water zone valve wiring wiring diagram files

















