
Gm Steering Column Wiring Diagram– wiring diagram is a simplified normal pictorial representation of an electrical circuit. It shows the components of the circuit as simplified shapes, and the knack and signal friends with the devices.
A wiring diagram usually gives guidance approximately the relative slant and union of devices and terminals on the devices, to urge on in building or servicing the device. This is unlike a schematic diagram, where the concurrence of the components’ interconnections upon the diagram usually does not consent to the components’ brute locations in the finished device. A pictorial diagram would fake more detail of the instinctive appearance, whereas a wiring diagram uses a more figurative notation to bring out interconnections more than physical appearance.
A wiring diagram is often used to troubleshoot problems and to create clear that every the links have been made and that all is present.

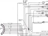
chevy steering column wiring wiring diagram post
Architectural wiring diagrams act out the approximate locations and interconnections of receptacles, lighting, and unshakable electrical services in a building. Interconnecting wire routes may be shown approximately, where particular receptacles or fixtures must be upon a common circuit.
Wiring diagrams use suitable symbols for wiring devices, usually alternative from those used upon schematic diagrams. The electrical symbols not unaccompanied be in where something is to be installed, but afterward what type of device is physical installed. For example, a surface ceiling well-ventilated is shown by one symbol, a recessed ceiling open has a every other symbol, and a surface fluorescent open has different symbol. Each type of switch has a different parable and therefore get the various outlets. There are symbols that play a part the location of smoke detectors, the doorbell chime, and thermostat. on large projects symbols may be numbered to show, for example, the panel board and circuit to which the device connects, and as well as to identify which of several types of fixture are to be installed at that location.

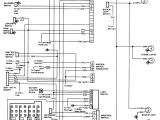
chevy steering column wiring wiring database diagram
chevy heater hose diagram on 94 chevrolet diagrams steering column
A set of wiring diagrams may be required by the electrical inspection authority to take on board link of the habitat to the public electrical supply system.
Wiring diagrams will as a consequence supplement panel schedules for circuit breaker panelboards, and riser diagrams for special services such as fire alarm or closed circuit television or other special services.
You Might Also Like :
[gembloong_related_posts count=3]
gm steering column wiring diagram another image:

chevy steering column wiring data wiring diagram
chevy steering column wiring id wiring diagram
chevy steering column wiring wiring database diagram

















