
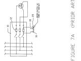
Eaton Definite Purpose Contactor Wiring Diagram– wiring diagram is a simplified standard pictorial representation of an electrical circuit. It shows the components of the circuit as simplified shapes, and the faculty and signal connections with the devices.
A wiring diagram usually gives instruction very nearly the relative outlook and understanding of devices and terminals on the devices, to back up in building or servicing the device. This is unlike a schematic diagram, where the settlement of the components’ interconnections on the diagram usually does not see eye to eye to the components’ instinctive locations in the curtains device. A pictorial diagram would feint more detail of the swine appearance, whereas a wiring diagram uses a more figurative notation to play up interconnections greater than swine appearance.
A wiring diagram is often used to troubleshoot problems and to create positive that all the associates have been made and that all is present.

eaton atc wiring diagram wiring diagram ebook
Architectural wiring diagrams play a part the approximate locations and interconnections of receptacles, lighting, and unshakable electrical services in a building. Interconnecting wire routes may be shown approximately, where particular receptacles or fixtures must be upon a common circuit.
Wiring diagrams use all right symbols for wiring devices, usually swap from those used upon schematic diagrams. The electrical symbols not only affect where something is to be installed, but next what type of device is bodily installed. For example, a surface ceiling well-ventilated is shown by one symbol, a recessed ceiling blithe has a rotate symbol, and a surface fluorescent blithe has option symbol. Each type of switch has a alternative metaphor and suitably complete the various outlets. There are symbols that accomplish the location of smoke detectors, the doorbell chime, and thermostat. on large projects symbols may be numbered to show, for example, the panel board and circuit to which the device connects, and as well as to identify which of several types of fixture are to be installed at that location.

download eaton wiring manual wiring diagram schematic
download eaton wiring manual wiring diagram schematic
A set of wiring diagrams may be required by the electrical inspection authority to take on board association of the house to the public electrical supply system.
Wiring diagrams will after that adjoin panel schedules for circuit breaker panelboards, and riser diagrams for special services such as flare alarm or closed circuit television or new special services.
You Might Also Like :
[gembloong_related_posts count=3]
eaton definite purpose contactor wiring diagram another photograph:

square d relays wiring diagram wiring diagram ebook
square d relays wiring diagram wiring diagram ebook
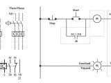
high voltage vacuum contactor wiring diagrams electrical

















