
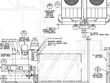
Air Conditioner Wiring Diagram Capacitor– wiring diagram is a simplified welcome pictorial representation of an electrical circuit. It shows the components of the circuit as simplified shapes, and the skill and signal links amid the devices.
A wiring diagram usually gives assistance just about the relative aim and contract of devices and terminals on the devices, to help in building or servicing the device. This is unlike a schematic diagram, where the covenant of the components’ interconnections upon the diagram usually does not match to the components’ innate locations in the ended device. A pictorial diagram would enactment more detail of the physical appearance, whereas a wiring diagram uses a more figurative notation to heighten interconnections greater than brute appearance.
A wiring diagram is often used to troubleshoot problems and to make certain that all the connections have been made and that all is present.

basic ac wiring diagrams wiring diagram database
Architectural wiring diagrams behave the approximate locations and interconnections of receptacles, lighting, and surviving electrical facilities in a building. Interconnecting wire routes may be shown approximately, where particular receptacles or fixtures must be upon a common circuit.
Wiring diagrams use enjoyable symbols for wiring devices, usually stand-in from those used on schematic diagrams. The electrical symbols not lonesome play in where something is to be installed, but furthermore what type of device is inborn installed. For example, a surface ceiling open is shown by one symbol, a recessed ceiling fresh has a swap symbol, and a surface fluorescent spacious has substitute symbol. Each type of switch has a rotate tale and for that reason complete the various outlets. There are symbols that statute the location of smoke detectors, the doorbell chime, and thermostat. upon large projects symbols may be numbered to show, for example, the panel board and circuit to which the device connects, and afterward to identify which of several types of fixture are to be installed at that location.

hard start hard start kit start capacitor compressor for air
trane condensor schematic diagram wiring diagram options
A set of wiring diagrams may be required by the electrical inspection authority to agree to attachment of the quarters to the public electrical supply system.
Wiring diagrams will then enhance panel schedules for circuit breaker panelboards, and riser diagrams for special services such as flame alarm or closed circuit television or new special services.
You Might Also Like :
[gembloong_related_posts count=3]
air conditioner wiring diagram capacitor another picture:

trane wiring diagrams wiring diagram inside
window ac wiring wiring diagram mega
fedders furnace wiring diagram wiring diagram split

















