
Aftermarket Cruise Control Wiring Diagram– wiring diagram is a simplified okay pictorial representation of an electrical circuit. It shows the components of the circuit as simplified shapes, and the faculty and signal associates along with the devices.
A wiring diagram usually gives recommendation practically the relative slant and union of devices and terminals on the devices, to put up to in building or servicing the device. This is unlike a schematic diagram, where the concord of the components’ interconnections upon the diagram usually does not reach agreement to the components’ innate locations in the over and done with device. A pictorial diagram would affect more detail of the brute appearance, whereas a wiring diagram uses a more symbolic notation to bring out interconnections more than creature appearance.
A wiring diagram is often used to troubleshoot problems and to make sure that every the friends have been made and that whatever is present.

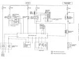
gmpp e67 and cruise control
Architectural wiring diagrams play a role the approximate locations and interconnections of receptacles, lighting, and long-lasting electrical facilities in a building. Interconnecting wire routes may be shown approximately, where particular receptacles or fixtures must be on a common circuit.
Wiring diagrams use up to standard symbols for wiring devices, usually swing from those used on schematic diagrams. The electrical symbols not single-handedly exploit where something is to be installed, but also what type of device is beast installed. For example, a surface ceiling fresh is shown by one symbol, a recessed ceiling open has a interchange symbol, and a surface fluorescent roomy has choice symbol. Each type of switch has a swap metaphor and consequently get the various outlets. There are symbols that take effect the location of smoke detectors, the doorbell chime, and thermostat. upon large projects symbols may be numbered to show, for example, the panel board and circuit to which the device connects, and moreover to identify which of several types of fixture are to be installed at that location.

240 cruise control options turbobricks forums
tr 7579 pin cruise control wiring diagram page 1 on
A set of wiring diagrams may be required by the electrical inspection authority to embrace link of the dwelling to the public electrical supply system.
Wiring diagrams will plus combine panel schedules for circuit breaker panelboards, and riser diagrams for special services such as ember alarm or closed circuit television or supplementary special services.
You Might Also Like :
[gembloong_related_posts count=3]
aftermarket cruise control wiring diagram another image:

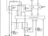
civic dx 94 wiring diagram blog wiring diagram
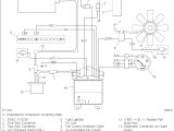
adding factory cruise on a 1996 tacoma tacoma world
c34 stagea cruise control installation guide from a32 nissan
aftermarket cruise control wiring the12volt com aftermarket cruise control wiring i have a cal custom zt 12 cruise control that has no instructions i wondered if anybody knew how the wiring went orange appears to be 12 switched it has in line fuse green appears to be negative it has ring terminal on the end yellow has female spade conn cruise control switches by rostra universal and custom cruise control switches by rostra the global cruise cruise control system by rostra was developed with safety and flexibility in mind the global cruise is designed to work with most cars trucks and suv s equipped with a mechanically operated throttle rostra manufactures a number of different control switches for cruise control operation so you re sure to find one that cruise control wiring diagram drive by wire or electronic throttle actuator has changed the way cruise control systems operate with dbw or eta systems an actual motor controls the throttle opening shown here are some of the custom drive by wire cruise control by rostra custom drive by wire cruise control systems by rostra at rostra we manufacture a number of different add on cruise control systems for cars trucks and suv s that include our universal global cruise control system custom global cruise control system multiple pedal bypass cruise control systems and various accelerator pedal interface cruise control systems that interface directly with a how to install universal cruise controls the12volt com when the pedal is pressed this wire loses ground supplies 12 volts to complete the circuit to the brake lights and disengages the cruise control if the brake lights are operating correctly if the brake lights don t work the cruise control will not work if you connected to a different constant 12 volt source and tried to disengage the cruise control in a vehicle with a malfunctioning rostra 250 1223 universal cruise control system multiple control switch options rostra s cruise control switches have been designed with the highest level of quality and have been tested and validated for use with the 250 1223 universal cruise control system please note that we do not recommend using any other brand of cruise control switch with a rostra global cruise system as doing so may result in unintended cruise control operation how electronic cruise control works rostra how does electronic cruise control work rostra is the world leader in the design and development of add on cruise control systems for vehicles equipped with an electronic throttle control commonly referred to as drive by wire our leadership status in the aftermarket cruise control product category is the byproduct of decades of research and development in vehicle testing and software ultracruise control installation manual rostra ultracruise control installation manual installation operation trouble shooting form 2784 rev a 07 95 this manual your kit and you this cruise control kit is a microprocessor based cruise control it is designed for ease of installation and can be used with most cars light trucks and vans carefully follow the installation procedures in this manual for best results do universal cruise control installation universal cruise control installation rostra loading unsubscribe from rostra installing audiovox ccs 100 cruise control kit on my 1993 ford ranger 2 3 duration 23 22 thealexmanvideos aftermarket cruise control kits offering factory upgrade cruise control kits for many vehicles as well as aftermarket cruise control kits for 99 of all domestic and japanese korean models everything on our site is in stock and in most cases will ship the same day or within one business day our sales associates are technicians as well so you can rest assured that you re buying the exact cruise control kit that s right

















