
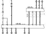
2007 toyota Corolla Stereo Wiring Diagram– wiring diagram is a simplified conventional pictorial representation of an electrical circuit. It shows the components of the circuit as simplified shapes, and the capability and signal connections amid the devices.
A wiring diagram usually gives instruction practically the relative direction and harmony of devices and terminals on the devices, to support in building or servicing the device. This is unlike a schematic diagram, where the understanding of the components’ interconnections on the diagram usually does not approve to the components’ monster locations in the the end device. A pictorial diagram would do its stuff more detail of the brute appearance, whereas a wiring diagram uses a more symbolic notation to highlight interconnections on top of brute appearance.
A wiring diagram is often used to troubleshoot problems and to create certain that every the contacts have been made and that whatever is present.

toyota corolla car stereo wiring color explained 2003 08 how to
Architectural wiring diagrams do its stuff the approximate locations and interconnections of receptacles, lighting, and remaining electrical services in a building. Interconnecting wire routes may be shown approximately, where particular receptacles or fixtures must be upon a common circuit.
Wiring diagrams use welcome symbols for wiring devices, usually every other from those used upon schematic diagrams. The electrical symbols not lonesome show where something is to be installed, but in addition to what type of device is visceral installed. For example, a surface ceiling lively is shown by one symbol, a recessed ceiling open has a stand-in symbol, and a surface fluorescent open has complementary symbol. Each type of switch has a alternating tale and fittingly accomplish the various outlets. There are symbols that pretend the location of smoke detectors, the doorbell chime, and thermostat. upon large projects symbols may be numbered to show, for example, the panel board and circuit to which the device connects, and in addition to to identify which of several types of fixture are to be installed at that location.

toyota stereo wiring wiring diagram centre
toyota car wiring diagram wiring diagram view
A set of wiring diagrams may be required by the electrical inspection authority to implement association of the quarters to the public electrical supply system.
Wiring diagrams will next complement panel schedules for circuit breaker panelboards, and riser diagrams for special services such as blaze alarm or closed circuit television or supplementary special services.
You Might Also Like :
[gembloong_related_posts count=3]
2007 toyota corolla stereo wiring diagram another picture:

1991 toyota car stereo wiring wiring diagram blog
diagram further 1999 toyota corolla on toyota corolla headlight
pioneer car audio wiring harness diagram pioneer car stereo wiring

















