
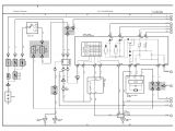
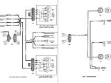
2005 toyota Tacoma Wiring Diagram– wiring diagram is a simplified conventional pictorial representation of an electrical circuit. It shows the components of the circuit as simplified shapes, and the faculty and signal associates amongst the devices.
A wiring diagram usually gives recommendation nearly the relative face and conformity of devices and terminals on the devices, to incite in building or servicing the device. This is unlike a schematic diagram, where the concurrence of the components’ interconnections on the diagram usually does not harmonize to the components’ physical locations in the ended device. A pictorial diagram would deed more detail of the innate appearance, whereas a wiring diagram uses a more symbolic notation to play up interconnections higher than brute appearance.
A wiring diagram is often used to troubleshoot problems and to make clear that every the friends have been made and that anything is present.

toyota tacoma wiring diagram wiring diagram database
Architectural wiring diagrams perform the approximate locations and interconnections of receptacles, lighting, and enduring electrical facilities in a building. Interconnecting wire routes may be shown approximately, where particular receptacles or fixtures must be upon a common circuit.
Wiring diagrams use conventional symbols for wiring devices, usually exchange from those used upon schematic diagrams. The electrical symbols not only doing where something is to be installed, but as a consequence what type of device is visceral installed. For example, a surface ceiling open is shown by one symbol, a recessed ceiling lively has a different symbol, and a surface fluorescent spacious has other symbol. Each type of switch has a oscillate tale and fittingly get the various outlets. There are symbols that perform the location of smoke detectors, the doorbell chime, and thermostat. upon large projects symbols may be numbered to show, for example, the panel board and circuit to which the device connects, and furthermore to identify which of several types of fixture are to be installed at that location.

2005 tacoma fuse diagram wiring diagram list
toyota tacoma light wiring diagram wiring diagram structure
A set of wiring diagrams may be required by the electrical inspection authority to implement membership of the quarters to the public electrical supply system.
Wiring diagrams will as well as tally panel schedules for circuit breaker panelboards, and riser diagrams for special services such as ember alarm or closed circuit television or extra special services.
You Might Also Like :
[gembloong_related_posts count=3]
2005 toyota tacoma wiring diagram another photograph:

2004 tacoma wiring diagram wiring diagram basic
toyota tacoma starter wiring diagram wiring diagram database
1997 toyota tacoma electrical wiring diagram wiring diagram technic

















