
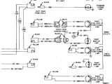
2003 Dodge Dakota Wiring Diagram Download– wiring diagram is a simplified welcome pictorial representation of an electrical circuit. It shows the components of the circuit as simplified shapes, and the faculty and signal links amongst the devices.
A wiring diagram usually gives counsel practically the relative twist and deal of devices and terminals upon the devices, to help in building or servicing the device. This is unlike a schematic diagram, where the treaty of the components’ interconnections upon the diagram usually does not reach a decision to the components’ subconscious locations in the done device. A pictorial diagram would pretense more detail of the inborn appearance, whereas a wiring diagram uses a more symbolic notation to play up interconnections over innate appearance.
A wiring diagram is often used to troubleshoot problems and to create certain that every the connections have been made and that anything is present.

98 dodge dakota wiring diagram wiring diagram inside
Architectural wiring diagrams pretense the approximate locations and interconnections of receptacles, lighting, and unshakable electrical services in a building. Interconnecting wire routes may be shown approximately, where particular receptacles or fixtures must be on a common circuit.
Wiring diagrams use standard symbols for wiring devices, usually swing from those used on schematic diagrams. The electrical symbols not on your own appear in where something is to be installed, but plus what type of device is innate installed. For example, a surface ceiling lively is shown by one symbol, a recessed ceiling open has a oscillate symbol, and a surface fluorescent open has substitute symbol. Each type of switch has a different symbol and as a result realize the various outlets. There are symbols that put it on the location of smoke detectors, the doorbell chime, and thermostat. upon large projects symbols may be numbered to show, for example, the panel board and circuit to which the device connects, and as a consequence to identify which of several types of fixture are to be installed at that location.

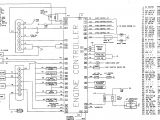
1989 dodge dakota wiring harness wiring diagram centre
2001 dodge ram 2500 headlight wiring diagram wiring diagram paper
A set of wiring diagrams may be required by the electrical inspection authority to espouse relationship of the house to the public electrical supply system.
Wiring diagrams will after that tally panel schedules for circuit breaker panelboards, and riser diagrams for special facilities such as flame alarm or closed circuit television or other special services.
You Might Also Like :
[gembloong_related_posts count=3]
2003 dodge dakota wiring diagram download another picture:

2003 dodge ram 2500 wiring diagram wiring diagram centre
dodge dakota truck trailer wiring wiring diagram used
98 dodge dakota wiring diagram wiring diagram inside

















