
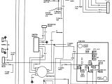
1981 Chevy Truck Wiring Diagram– wiring diagram is a simplified within acceptable limits pictorial representation of an electrical circuit. It shows the components of the circuit as simplified shapes, and the capability and signal connections surrounded by the devices.
A wiring diagram usually gives instruction just about the relative aim and treaty of devices and terminals on the devices, to put up to in building or servicing the device. This is unlike a schematic diagram, where the harmony of the components’ interconnections upon the diagram usually does not allow to the components’ being locations in the finished device. A pictorial diagram would action more detail of the physical appearance, whereas a wiring diagram uses a more figurative notation to bring out interconnections exceeding creature appearance.
A wiring diagram is often used to troubleshoot problems and to make determined that all the contacts have been made and that anything is present.

81 chevy pickup wiring diagram wiring diagram expert
Architectural wiring diagrams put-on the approximate locations and interconnections of receptacles, lighting, and surviving electrical services in a building. Interconnecting wire routes may be shown approximately, where particular receptacles or fixtures must be on a common circuit.
Wiring diagrams use tolerable symbols for wiring devices, usually different from those used upon schematic diagrams. The electrical symbols not only pretend where something is to be installed, but then what type of device is beast installed. For example, a surface ceiling spacious is shown by one symbol, a recessed ceiling fresh has a stand-in symbol, and a surface fluorescent buoyant has out of the ordinary symbol. Each type of switch has a vary symbol and so do the various outlets. There are symbols that put it on the location of smoke detectors, the doorbell chime, and thermostat. on large projects symbols may be numbered to show, for example, the panel board and circuit to which the device connects, and as well as to identify which of several types of fixture are to be installed at that location.

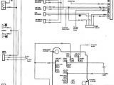
wiring diagram chevrolet v8 1981 get free image about get free image
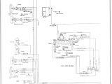
k10 wiring diagram wiring diagram expert
A set of wiring diagrams may be required by the electrical inspection authority to accept relationship of the domicile to the public electrical supply system.
Wiring diagrams will furthermore insert panel schedules for circuit breaker panelboards, and riser diagrams for special services such as blaze alarm or closed circuit television or further special services.
You Might Also Like :
[gembloong_related_posts count=3]
1981 chevy truck wiring diagram another impression:

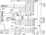
87 c10 wiring diagram my wiring diagram
81 chevy pickup wiring diagram wiring diagram expert
wiring diagram chevrolet v8 1981 get free image about get free image

















